
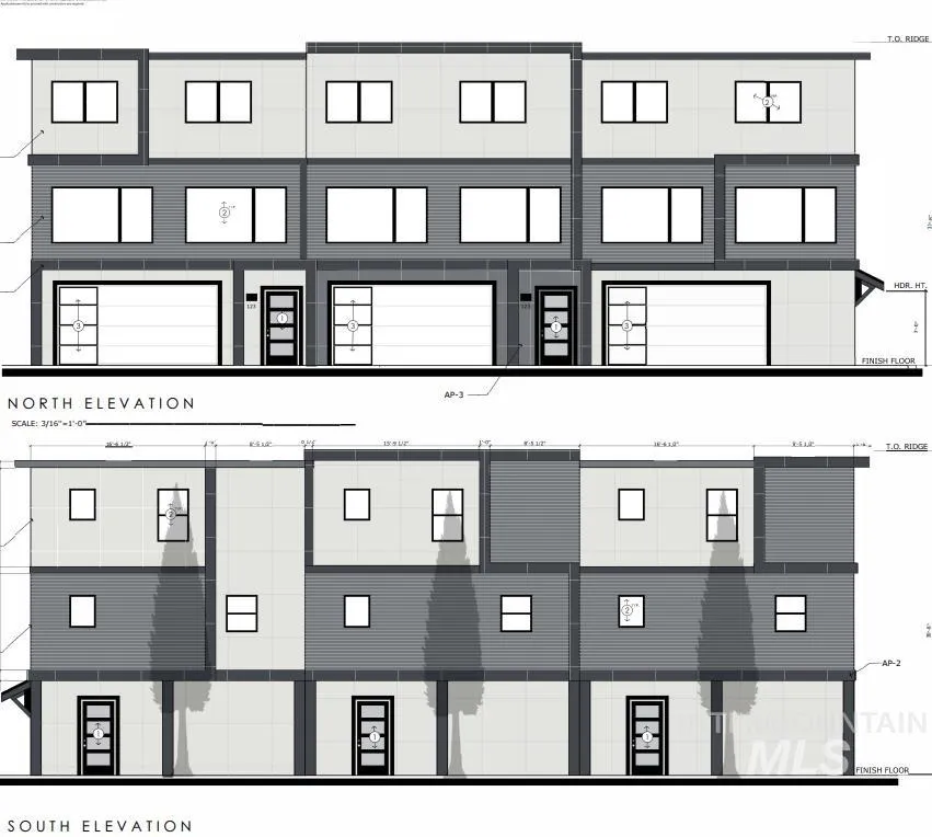
Fantastic opportunity to purchase a fully entitled triplex lot in the heart of Garden City, just blocks from the new AC Boise Soccer Stadium and the Boise River Greenbelt. This exceptional infill lot offers quick freeway access and effortless connectivity to Downtown Boise, making it ideal for both long-term rentals or future resale. The sale includes fully approved triplex plans, saving months of time and carrying costs—start building immediately. Located in one of the Treasure Valley’s fastest-growing areas, this site benefits from strong rental demand, proximity to outdoor recreation, entertainment, and major employment centers. Enjoy walkable access to the Greenbelt, nearby wineries, breweries, and river access, while remaining minutes from downtown dining, shopping, and nightlife. With entitlement in place and a highly desirable location, this property offers a compelling opportunity for developers and investors alike.
IDX information is provided exclusively for personal, non-commercial use, and may not be used for any purpose other than to identify prospective properties consumers may be interested in purchasing. Information is deemed reliable but not guaranteed.
Last Updated: . Source: IMLS
Provided By
Listing Agent: Nikolas Buich (#20893), Phone: (208) 866-3295
Listing Office: Better Homes & Gardens 43North (#10983)
Get an estimate on monthly payments on this property.
Note: The results shown are estimates only and do not include all factors. Speak with a licensed agent or loan provider for exact details. This tool is sourced from CloseHack.